Продается 3-к квартира Казань, Магистральная (Большие Клыки) ул 18а
Коротко
- Номер объявления
- 30753699
- Дата подачи
- 29.11.2023
- Комнат
- 3
- Обновленно
- 06.12.2025
- Тип
- Квартиры
- Улица
- Магистральная (Большие Клыки) ул
- Номер дома
- 18а
- Вариант
- продажа
- В ипотеку
- 1
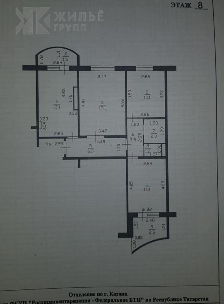
- Этаж
- 8
- Этажность
- 10
- Материал стен
- Панель
- Планировка
- 7
- Балкон
- Балкон
- Площадь общая
- 65.5
- Площадь жилая
- 38.6
- Площадь кухни
- 13.1
- Сан. узел
- Раздельный
- Год постройки
- 2010
- Состояние
- Требует ремонта
- Цена
- 7 800 000 руб.
- Просмотров
- 165
Контакты

АН "Жильё-групп"
- Агент:
- Фарида
- Телефон:
- 89600504323
Остерегайтесь мошенников! Не вносите предоплату за услуги риелторов до личного посещения и осмотра объекта недвижимости!
Описание
Продается отличная 3х комнатная квартира по ул. Магистральная, д.18А. Расположена на 8 этаже 10-ти этажного панельного дома 2010 г. застройки. Общая площадь 65,5кв.м., с учетом лоджий 69,6 кв.м.<br /><br /><strong>О КВАРТИРЕ :</strong><br />Планировка квартиры очень удачная- "распашонка", окна спален выходят на разные стороны дома, с/у раздельный, большая кухня 13 кв.м и гостиная 17 кв.м. Все комнаты изолированы, из кухни и одной спальни есть выход на лоджии, которые обшиты и застеклены. Во всей квартире новые пластиковые окна. В комнатах требуется косметический ремонт. В квартире остаются кухонный гарнитур, водонагреватель и кондиционер, частично мебель. <br /><br /><strong>О ДОМЕ:</strong><br /> В доме, где находится квартира, ухоженные чистые подъезды, просторный грузовой лифт, хорошая придомовая территория с выделенными местами для машин и отличной детской площадкой.<br /> <br /><strong>ИНФРАСТРУКТУРА :</strong><br />Рядом такие улицы, как: Вагапова, Кайбицкая, Ак.Сахарова, Ак.Глушко, пос. Б.Клыки, Мамадышский тракт, тыныч, Новоселья.<br />Местоположение шикарное- рядом транспортная развязка(ост. Ак. Сахарова), в ближайшем будущем будет запущена станция метро, остановки общественного транспорта в шаговой доступности, удобный выезд из города через Мамадышский тракт.<br />Вся необходимая инфраструктура поблизости- дет.сад №113 во дворе, в шаговой доступности школы №171,174. Недалеко расположены магазины "Пятерочка", "Березка", супермаркет "Евро Спар" , торговый центр "Мега", спортивный комплекс "Ак Буре", Центр бокса и настольного тенниса, салоны красоты, рестораны и кафе. <br /><strong> <br />Записывайтесь на показ объекта в любое время!<br /> Поможем с одобрением ипотеки!<br /> Полное юридическое сопровождение и безопасный расчет!</strong><br /><br />#Фарида<br /><br /><br /><br />Номер объекта: #31/546317/16667
Цена 7 800 000 руб. /119 084 за м2
Если вы позвонили по объявлению и выяснили, что объекта не существует, либо с вас требуют предоплату за просмотр, оставьте жалобу!
Дополнительно
- Мебель
- Кондиционер
Посмотреть все объявления (14): Продажа 3 комн. квартир Советский, Казань
3-комн. Квартиры, Советский, Цена до 8 580 000, от 59 м2




Социальные кнопки