Продается 1-к квартира Казань, Колымская ул 15
Коротко
- Номер объявления
- 31169045
- Дата подачи
- 16.02.2026
- Комнат
- 1
- Обновленно
- 22.04.2026
- Тип
- Квартиры
- Улица
- Колымская ул
- Номер дома
- 15
- Вариант
- обмен
- В ипотеку
- 1
- Этаж
- 4
- Этажность
- 9
- Материал стен
- Кирпич
- Балкон
- Лоджия
- Площадь общая
- 43
- Площадь жилая
- 17
- Площадь кухни
- 9.4
- Сан. узел
- Совмещенный
- Год постройки
- 2013
- Цена
- 5 950 000 руб.
- Просмотров
- 29
Контакты
Остерегайтесь мошенников! Не вносите предоплату за услуги риелторов до личного посещения и осмотра объекта недвижимости!
Описание
Агентство недвижимости ИЗУМРУД предлагает приобрести
Восхитительную 1-комнатную квартиру на среднем этаже в одном из самых новых домов микрорайона Юдино, Кировский район г. Казань.
Квартира находится на 4 этаже 7-этажного подъезда 9-этажного кирпичного жилого дома.
В квартире сделан хороший косметический ремонт, установлены качественные межкомнатные двери, пластиковые окна, ламинат, кондиционер, отличный кухонный гарнитур.
Удачная планировка комнаты позволяет разделить зону детскую и зону гостиной. Просторная кухня для воплощения всех шедевров хозяйки с выходом на лоджию.
Изюминкой квартиры является просторная лоджия, обшитая светлой вагонкой, в которой в комплексе с теплым полом добавлена кровать, что позволяет пользоваться лоджией как ещё одной спальней - Уникальное планировочное решение! Панорамные окна для наслаждения видами пышной растительности в теплое время года и видами Волги, в том числе для обеспечения безопасности в зоне кровати - окно на лоджии распашное только при входе.
Удобное расположение дома - на первом этаже дома находится новая детская поликлиника, рядом открыли новый магазин Пятёрочка на ул. Молодогвардейская, также рядом находится школа 151 с английским уклоном, детский садик на ул. Бирюзовая, около дома остановка автобусов 46 и 72, на ул. Революционная находится продовольственный рынок, ЖД станция пригородных электричек, в Юдино есть все необходимое для жизни без нужды выезда в центр города - аптеки, магазины, кафе, пекарни, пункты выдачи, ДК железнодорожников с кинотеатром и множеством кружков, шикарный сосновый бор, перетекающий в берёзовую рощу. Сказочной место, дружный городок в городе Казани!
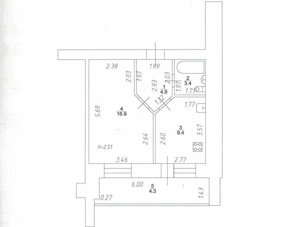
Площади квартиры:
Общая площадь - 38,9
Общая по СНиП - 34,6
Жилая - 16,9
Кухня - 9,4
Холл - 4,9
С/у - 3,4
Лоджия - 4,3 (в коэффициенте 0,5, фактическая площадь лоджии 8,6)
(34,6 общая по СНиП + 8,6 лоджия 43,2 кв.м. фактическая площадь квартиры)
При просмотре возможно обсудить вопрос оставления за квартирой просторной КЛАДОВКИ С ОКНОМ между этажами.
Документы по объекту без проблем и сложностей:
Квартира в собственности более 5 лет, полная цена в договоре
Ипотека погашена, квартира без обременений и долгов;
Встречный вариант подобран, идёт активная подготовка документов к сделкам.
Звоните! Покажем квартиру в удобное для вас время,
Проконсультируем по вопросам приобретения квартиры как за наличку, так и в ипотеку, в том числе с использованием маткапитала
Цена 5 950 000 руб. /138 372 за м2
Если вы позвонили по объявлению и выяснили, что объекта не существует, либо с вас требуют предоплату за просмотр, оставьте жалобу!
Дополнительно
- Кондиционер
1-комн. Квартиры, Казань, Цена до 6 545 000, от 39 м2





Социальные кнопки